小山市中久喜 新築戸建1-4

2,690万円

栃木県小山市大字中久喜

水戸線「小田林」駅徒歩25分

水戸線「結城」駅徒歩43分

東北本線「小山」駅徒歩46分

価格
2,690万円
間取り/建物面積
4LDK/113.44㎡
所在地
栃木県小山市大字中久喜
築年
2025年9月(新築)
駐車
-
交通

水戸線小田林」駅 徒歩25分

水戸線結城」駅 徒歩43分

東北本線小山」駅 徒歩46分

小山市中久喜 新築戸建1-4の基本情報

物件名
小山市中久喜 新築戸建1-4
価格
2,690万円
建物面積
113.44㎡
土地面積
75.05坪(248.11㎡)
築年月
2025年9月(新築)
総戸数
-
所在地
栃木県小山市大字中久喜
交通

水戸線小田林」駅 徒歩25分

水戸線結城」駅 徒歩43分

東北本線小山」駅 徒歩46分

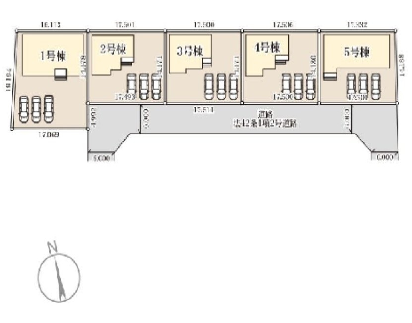
小山市中久喜 新築戸建1-4の詳細情報

設備条件
  • 駐車3台可
設備(その他)
    排水使用料有
駐車場/月額
-/-
土地権利
所有権
国土法届出
不要
用途地域
無指定
取引態様
仲介
引渡し
相談

小山市中久喜 新築戸建1-4で募集中の物件

  1. 34.31坪 (113.44㎡)

    2,690万円(78.4万円/坪)

周辺施設

  • 小山犬塚郵便局の画像

    郵便局

    小山犬塚郵便局

    625m(8分)

  • 大谷北小学校の画像

    小学校

    大谷北小学校

    836m(11分)

  • セブンイレブン 小山犬塚4丁目店の画像

    コンビニエンスストア

    セブンイレブン 小山犬塚4丁目店

    911m(12分)

  • 犬塚公園の画像

    公園

    犬塚公園

    1073m(14分)

  • たいらや 犬塚店の画像

    スーパー

    たいらや 犬塚店

    1178m(15分)

  • ウエルシア薬局小山犬塚店の画像

    ドラッグストア

    ウエルシア薬局小山犬塚店

    1188m(15分)

  • セブンイレブン 小山犬塚6丁目店の画像

    コンビニエンスストア

    セブンイレブン 小山犬塚6丁目店

    1302m(17分)

  • いぬづか眼科の画像

    眼科

    いぬづか眼科

    1390m(18分)

  • 栃木県 警察本部 小山警察署 犬塚交番の画像

    警察

    栃木県 警察本部 小山警察署 犬塚交番

    1408m(18分)

  • 小山ゴールドレーンの画像

    その他

    小山ゴールドレーン

    1586m(20分)

近隣の物件

  1. 小山市犬塚7丁目

    4LDK (105.16㎡)

    2,250万円

  2. 小山市神鳥谷1丁目

    5DK (110.13㎡)

    1,000万円

  3. 小山市東間々田2丁目

    7DK (115.02㎡)

    730万円

  4. 小山市大字出井

    2LDK (92.74㎡)

    3,470万円

よく見られている物件

  1. 結城市中央町2丁目

    3DK (78.66㎡)

    1,500万円

  2. 小山市駅南町5丁目

    4LDK (98.95㎡)

    3,100万円

  3. 小山市西城南1丁目

    5SLDK (132.49㎡)

    1,660万円

  4. 小山市神鳥谷1丁目

    5DK (110.13㎡)

    1,000万円

小山市中久喜 新築戸建1-4

お気軽にお問い合わせください

LINEからお問い合わせ 無料お問い合わせ

有限会社ミネ不動産

0285-20-6226

9:00~18:00

(休:水曜・日曜・祝日)